今回卒業制作の軸を決めるにあたり、「女性をターゲットに1日を使って自身の心と身体を思い明日への活力となるような空間を作りたい」という思いから始まった。
計画するにあたって、土地の歴史や風土がある場所でそのまちに訪れ「体験」「経験」できる敷地を探し尾道に出会う。
山・森・川・海・里山の豊な自然や、この地に暮らす人々が作り出したまち並みや歴史的建造物が存在する。戦果を逃れ昭和時代から残る建物、まち、自然、人々が繋いできた歴史「尾道」をこの先も人々の記憶に刻みたい。
「尾道を巡る、心に刻む。」をテーマに、尾道で過ごす時間をより濃くする「宿 刻(Toki)」と心と身体を思う「食 巡(Meguru)、エステサロン 整(Totonoeru)」の2棟既存の建物を探し計画した。
将来はまち全体を含めて尾道という場所を活かし、まちと人を繋ぐようなプロジェクトを描いている。
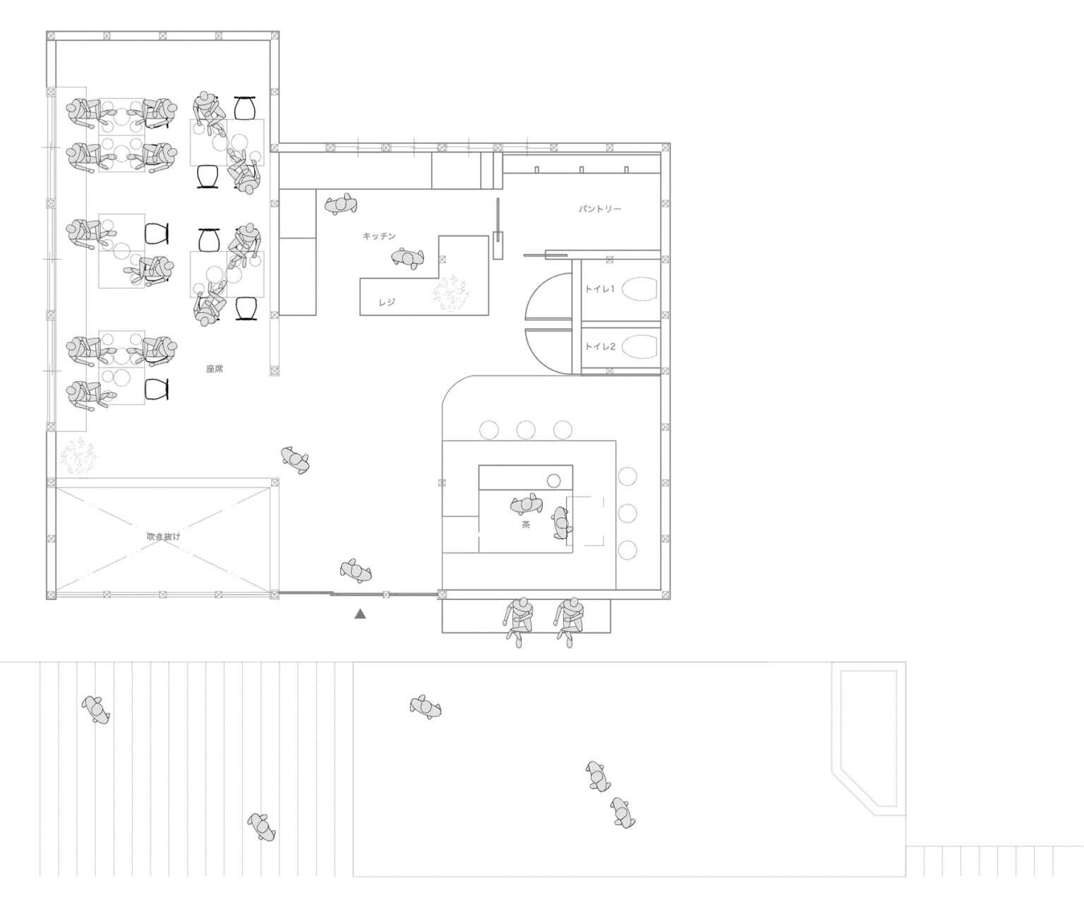
千光寺新道の階段から2階レストラン 食「巡」をみる
尾道駅から歩いて12分、千光寺新道の中腹に位置する建物。この建物の特徴は入り口が2つあり、階段下と広場に面してある。千光寺新道は観光客が多く通りであるため、この広場に人が溜まり賑わい建物へ入って行く様子が想像でき「まちに開いた空間」を目指すのに適した場所だと思い計画を進めた。
尾道を眺めながら食を楽しむ空間へ
外ベンチを置いている壁面にはカフェで働くスタッフの動きがスリットからみえる、入り口突き当たりには厨房にいるスタッフやお客さんの動き、階段壁面をガラスに変更し店内を見せる。階段、広場にいる人が店内にいる人の様子を見て興味を引く様なレイアウトを目指した。右手カフェでは茶を淹れるスタッフの所作を外を歩く人の行き来を見て過ごす。食を楽しむ客席では季節とその土地の食材を身体に取り入れ、外から見える瀬戸内を眺めながら食を楽しむ空間になっている。
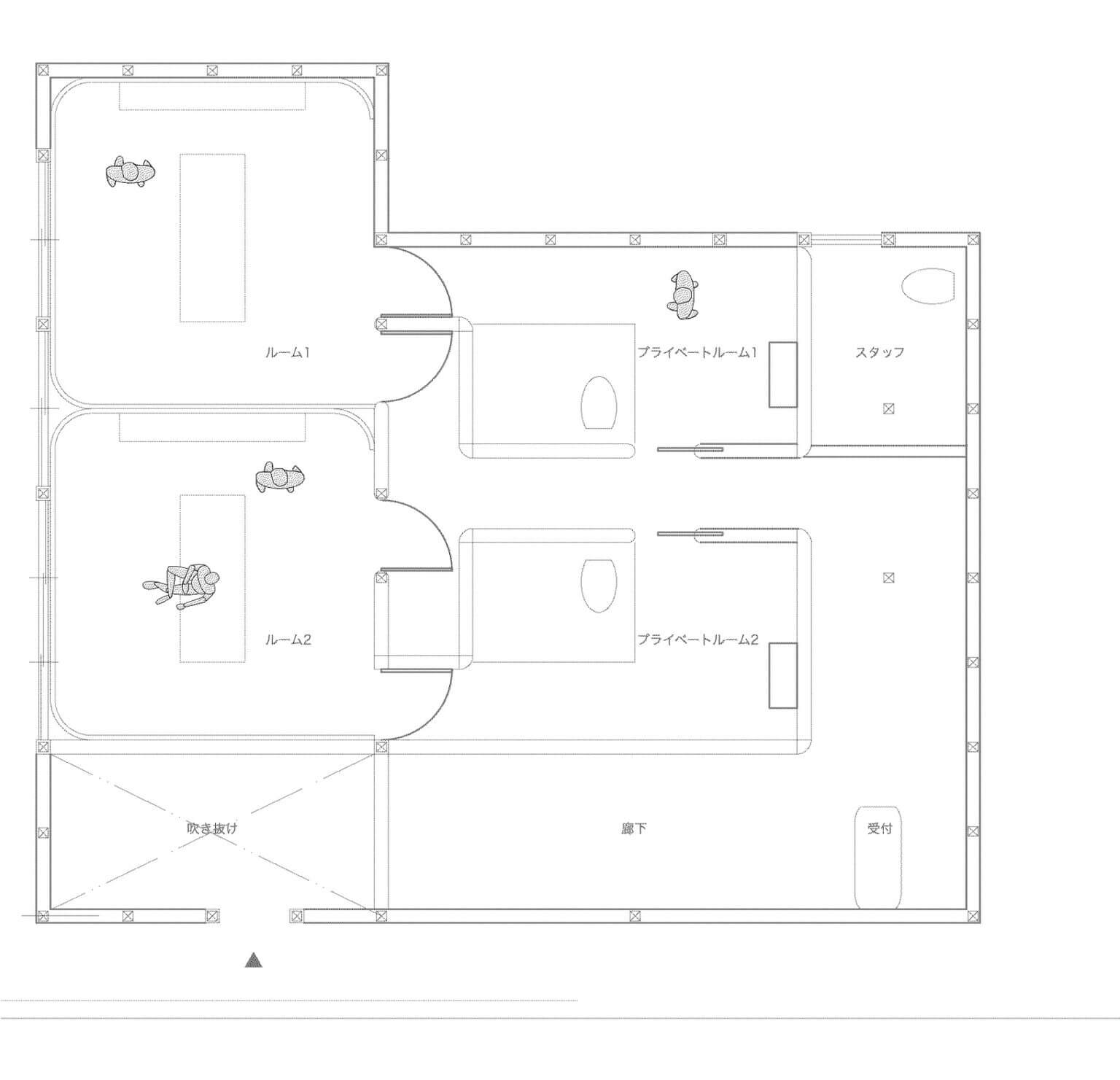
1階は女性限定エステサロンになっている。旅行の中で「体験」「経験」する事は、思い出だけでなく新たな自分の発見となるきっかけになると考える。このエステサロンでは、ゲストの悩みや理想をヒアリングし、その人にあった施術を行う。
入り口から長い廊下を歩くことにより施術することへの意識を集中させ、プライベートルームに入る。この部屋はスタッフや他のゲスト以外は入らないのでゆっくり身支度が可能。ルームに入ると窓から日差しが差込みカーブしたクリーム色の壁面はゲストを優しく包み込む。
2階寝室から外の景色をみる
2階窓から暖かな日が差し込む
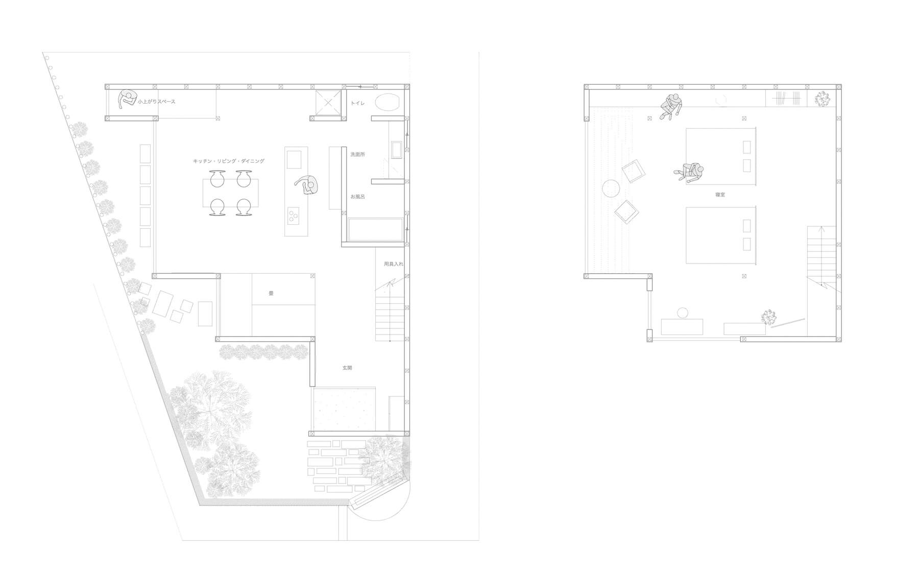
1階リビング・ダイニング・キッチン
「暮らすように泊まる」「建物の歴史を感じる」がテーマの宿。ゆったりとした落ち着きのある家具の配置から、この建物の見所である瀬戸内の景気を堪能できるレイアウトを計画。
玄関を入り奥へ進むと広々としたLDKが迎える。
寛げる居場所を探して欲しいという思いから、その人その時の気分で畳、床、小上がり
スペース、ダイニングチェアといった座る場所を選べるのがポイント。
1階、2階の開口部からは瀬戸内の景色が見え特に2階は遮る建物が少ないため寝室を置いている。朝方や夕方といった時間、季節によって異なる表情をみせる景色を堪能して欲しい。
2棟の壁面の色は、尾道を調べ訪れた際に見た自然の色から選んだ。見た色をそのまま取り入れるだけでなく、尾道は江戸時代から繁栄したことからインスピレーションを受け、江戸時代後期に町人の間で流行した「四十八茶百鼠」を参考に。宿は寛ぐ落ち着いた場所であり、瀬戸内の山々から「深川鼠」を。食・エステサロンは暖かく優しい雰囲気を出したく、春になると美しく咲く桜から「嵯峨鼠」を選び、尾道の「過去」と「現在」を繋ぐストーリーを建物壁面に表現した。



